The Condo Mania Team
MLS: 6944301 $505,000
3 Bedrooms with 3 Baths6833 E OSBORN ROAD E#E
SCOTTSDALE AZ 85251MLS: 6944301
Status: ACTIVE
List Price: $505,000
Price per SQFT: $319
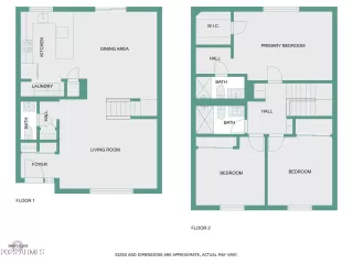
Square Footage: 15843 Bedrooms
3 Baths
Year Built: 1965
Zip Code: 85251
Listing Remarks
Welcome Home to your turnkey Casa Granada Townhouse! Gorgeous chef's kitchen features quartz counters, breakfast bar, under-mount sink, subway tile backsplash & SS appliances. Convenient in-unit laundry. Updated baths w/designer tile, vanities, mirrors, & fixtures. Generous size bedrooms, LVP floors & large closets! Private covered back patio with hot tub, grill and storage. Great for gathering family, friends or utilizing as an investment property given proximity to Old Town and all it offers. Move-in ready; just bring your toothbrush as the unit conveys with all furnishings, accessories, etc.
Address: 6833 E OSBORN ROAD E#E SCOTTSDALE AZ 85251
ARMLS SHEILA HENDERSON of HOMESMART ADVANTAGE GROUP
Community: CASA GRANADA ... Listing 4 of 4
First -- Next -- Previous -- Last
Condo Mania Agent
Greg Zonno
HomeSmart
Scottsdale Real Estate Agent
Phone: 480-229-9465
Request More Information
Listing Details
STATUS: Active PROPERTY TYPE: Residential PROPERTY SUB TYPE: Townhouse LISTING CONTRACT DATE: 2025-11-07 BEDROOMS: 3 BATHROOMS: 2.5 LIVING AREA SQ FT: 1584 LIVING AREA SOURCE: Assessor YEAR BUILT: 1965 TAXES: $1,176 HOA/MGMT CO: Casa Granada Townhou HOA/MGMT PHONE: 480-682-3209 HOA FEES FREQUENCY: Monthly HOA FEES: $296 HOA INCLUDES: Roof Repair, Insurance, Sewer, Pest Control, Maintenance Grounds, Street Maint, Front Yard Maint, Trash, Water, Roof Replacement, Maintenance Exterior COMMUNITY FEATURES: Pool, Near Bus Stop, Biking/Walking Path APPLIANCES INCLUDED: Dryer, Washer, Refrigerator, Built-in Microwave, Dishwasher, Disposal, Electric Range ARCHITECTURAL STYLE: Spanish BUILDER NAME: Unknown CONSTRUCTION: Painted, Block FLOORING: Laminate, Tile, Wood HEATING: Forced Air, Electric COOLING: Central Air, Ceiling Fan(s) INTERIOR FEATURES: Quartz Countertops, High Speed Internet, Upstairs, Eat-in Kitchen, Breakfast Bar, Furnished(See Rmrks), Pantry, 3/4 Bath Master Bdrm LAUNDRY FEATURES: Inside LOT FEATURES: North/South Exposure, Desert Front, Grass Front # GARAGE SPACES: 0 # CARPORT SPACES: 2 PARKING FEATURES: Detached Carport, Assigned COMMON WALLS: Two Common Walls ROOF: Built-Up STORIES TOTAL: 2 LEGAL DESCRIPTION: LOT 22 CASA GRANADA TOWNHOUSES MCR 010944 LISTING AGENT: SHEILA HENDERSON LISTING OFFICE: HOMESMART ADVANTAGE GROUP LISTING CONTACT: 520-850-2161
Estimated Monthly Payments
List Price: $505,000 20% Down Payment: $101,000 Loan Amount: $404,000 Loan Type: 30 Year Fixed Interest Rate: 6.5 % Monthly Payment: $2,554 Estimate does not include taxes, fees, insurance.
Request More Information
Property Location: 6833 E OSBORN ROAD E#E SCOTTSDALE AZ 85251
This Listing
Active Listings Nearby
Condo Mania Agent
Andrew Birss
HomeSmart
Scottsdale Real Estate Agent
Phone: 602-349-1003
You Might Also Be Interested In...
Community: CASA GRANADA ... Listing 4 of 4
First -- Next -- Previous -- Last
The Fair Housing Act prohibits discrimination in housing based on color, race, religion, national origin, sex, familial status, or disability.
ARMLS Logo indicates a property listed by a real estate brokerage other than Homesmart. All information should be verified by the recipient and none is guaranteed as accurate by ARMLS. Based on information from the Arizona Regional Multiple Listing Service. Copyright © 2025. Arizona Regional Multiple Listing Service, Inc. All rights reserved.
Information Deemed Reliable But Not Guaranteed. The information being provided is for consumer's personal, non-commercial use and may not be used for any purpose other than to identify prospective properties consumers may be interested in purchasing. This information, including square footage, while not guaranteed, has been acquired from sources believed to be reliable.
Last Updated: 2026-02-05 18:13:36
Scottsdale Condo Mania







